【価格改定】北寺尾4丁目新築分譲住宅 全8棟
up

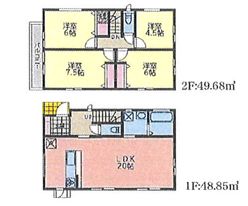
区画図 1号棟(間取) 2号棟(間取) 3号棟(間取) 4号棟(間取) 5号棟(間取) 6号棟(間取) 7号棟 8号棟
価格
4,580万円
新築戸建
間取
4LDK

所在地 神奈川県横浜市鶴見区北寺尾4丁目
北寺尾4丁目新築分譲住宅全8棟
交通 JR京浜東北・根岸線鶴見駅
バス(北寺尾 乗7分 停歩5分)
築年月 2026/1 新築/中古
面積 97.7m² 計測方式
バルコニー 向き
建物階数 地上2階  部屋階数
建物構造 木造
間取内容
駐車場 取引態様 仲介
引渡/入居時期 現況
地目 宅地 用途地域 第一種低層住居専
土地面積 97.7m² 土地面積計測方式
建ぺい率 40% 容積率 80%
土地権利 所有権 接道状況 一方
接道方向1 接道間口1
接道種別1 私道 接道幅員1 4.5m
周辺環境 旭 寺尾
設備・条件
物件番号

 

人気の北寺尾エリアに新築分譲住宅全8棟誕生

全棟2階建て1階リビング、広々とした20帖のリビングにメリハリのある4LDKとなっています。

車種にもよりますが2台~3台駐車できるのもうれしいポイントです。

内見可能ですのでお気軽にお声掛けください。

1号棟:4,680万円 車庫2台 土地面積:127.72㎡ 建物面積:100.40㎡

2号棟:5,380万円 車庫並列2台 土地面積:136.69㎡ 建物面積:98.53㎡

3号棟:5,080万円 車庫並列3台 土地面積:126.45㎡ 建物面積:98.53㎡

4号棟:4,980万円 車庫2台 土地面積:127.01㎡ 建物面積:99.15㎡

5号棟:4,880万円 車庫縦列2台 土地面積:127.29㎡ 建物面積:97.70㎡

6号棟:4,680万円 車庫縦列2台 土地面積:132.04㎡ 建物面積:98.12㎡

7号棟:4,580万円 車庫縦列2台 土地面積:127.69㎡ 建物面積:98.53㎡

8号棟:4,980万円 地下車庫2台 土地面積:126.57㎡ 建物面積:98.02㎡

※物件掲載内容と現況に相違がある場合は現況を優先と致します。

お名前 (必須)

メールアドレス (必須)

電話番号(必須)

題名

メッセージ本文

お名前 (必須)

メールアドレス (必須)

電話番号(必須)

題名

メッセージ本文