カテゴリ:売戸建
- 価格
- 1,680万円
- 中古戸建
- 間取
- 5DK
- 満室時表面利回り
- 10%
- 現行利回り
- 10%
|
|
- 所在地
- 神奈川県横浜市鶴見区 寺谷一丁目
- 交通
- JR京浜東北・根岸線鶴見駅 徒歩14分
- 築年月
- 1986/11
- 構造
- 木造
- 面積
- 土地 144.38m²
- 階数
- 地上 2階
- 物件番号
|
|
|
|
|
|
||
- 価格
- 3,170万円
- 間取
- 4LDK
|
|
- 所在地
- 神奈川県横浜市鶴見区 下末吉5丁目
- 交通
- JR京浜東北・根岸線鶴見駅 徒歩28分
- 面積
- 106.66m² 土地 66.36m²
- 階数
- 地上 3階
- 物件番号
|
|
||
- 価格
- 4,580万円
- 新築戸建
- 間取
- 4LDK
|
|
- 所在地
- 神奈川県横浜市鶴見区 北寺尾4丁目
- 交通
- JR京浜東北・根岸線鶴見駅
バス(北寺尾 乗7分 停歩5分)
- 築年月
- 2026/1
- 構造
- 木造
- 面積
- 97.7m² 土地 97.7m²
- 階数
- 地上 2階
- 物件番号
|
|
|
|
|
|
||
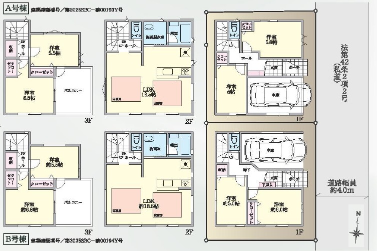
- 価格
- 4,580万円
- 新築戸建
- 間取
- 4LDK
|
|
- 所在地
- 神奈川県横浜市鶴見区 下末吉3丁目
- 交通
- JR京浜東北・根岸線鶴見駅
バス(末吉不動前 乗12分 停歩3分)
- 築年月
- 2026/01
- 構造
- 木造
- 新築未入居
- 面積
- 112.82m² 土地 63.63m²
- 階数
- 地上 3階
- 物件番号
|
|
|
|
|
|
||
- 価格
- 4,780万円
- 新築戸建
- 間取
- 4LDK
|
|
- 所在地
- 神奈川県横浜市鶴見区 下末吉1丁目
- 交通
- JR京浜東北・根岸線鶴見駅 徒歩17分
京急本線京急鶴見駅 徒歩19分
- 築年月
- 2025/12
- 構造
- 木造
- 面積
- 土地 135.67m²
- 階数
- 地上 2階
- 物件番号
|
|
|
|
|
|
||
価格
面積










